Дома под ключ во Владимире
Отзывы из Яндекс Карт
4.9
90 отзывов
Дополнительные услуги 88%
2 154 оценок
Комплектации 89%
1 535 оценок
Планировки 90%
2 484 оценок
Проекты 93%
2 231 оценок
С
Амалия Шапошникова02/09/2025 г.
Соседи по участку уже спрашивают кто нам такую красоту построил и мы с радостью рекомендуем компанию Брус дома как надежного и проверенного подрядчика.
Отзывы из Google Карт
4.8
54 отзывов
Дополнительные услуги 88%
2 154 оценок
Комплектации 89%
1 535 оценок
Планировки 90%
2 484 оценок
Проекты 93%
2 231 оценок
С
Фаина Бирюкова04/30/2026 г.
Дом 9х12 с двумя входами и котельной. Поначалу строители мешали соседям, шумели, но потом успокоились. Единственное, что бесило — постоянные звонки от менеджера с вопросами, согласны ли мы на замену материала на более дорогой. Я отказалась, поставили как в договоре.
С
Аида Кошелева03/28/2026 г.
Менеджер Наталья очень помогла с выбором проекта 5х7 с мансардой и эркером, даже смету уточняли три раза, а когда приехала бригада, они вообще не знали, что там эркер нужен — пришлось ждать пока привезут допбрус.
С
Ада И.01/07/2026 г.
Свекровь живёт в доме 6,5х7,5 с террасой, который мы заказали для пожилых. Сделали пандус, дверные проёмы шире, санузел на первом этаже. Всё учли, даже поручни в коридоре поставили. Очень благодарны (без пафоса, по делу).
С
Марина Шилова07/06/2025 г.
Каждый раз, приезжая на дачу, я не могу нарадоваться на свою новую баню, которая идеально вписалась в ландшафт и стала главным местом притяжения для всей нашей семьи.
Отзывы из 2гис
4.9
34 отзывов
Дополнительные услуги 88%
2 154 оценок
Комплектации 89%
1 535 оценок
Планировки 90%
2 484 оценок
Проекты 93%
2 231 оценок
С
Болеслав Чумаков02/03/2026 г.
Рекомендую компанию, но с оговоркой — заказывал у них дом 10х15 с бассейном и беседкой, всё сделали красиво, однако смету в процессе увеличили на 15% из-за удорожания пиломатериалов, я уже был в процессе, пришлось доплатить.
С
Забава Ермилова05/05/2025 г.
Я в полном восторге от своей новой бани. Спасибо компании Брус дома за качественный материал и быструю сборку. Бригада работала с раннего утра и до вечера, очень старались. Уже успели оценить её по достоинству — держит пар прекрасно, остывает медленно. Теперь это наше любимое семейное место для отдыха.


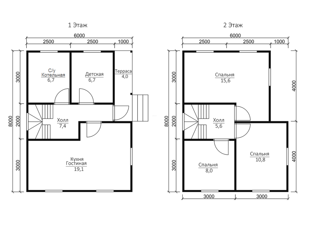
Проект №57 Двухэтажный дом 6х8

каркас из строганой доски
Создайте свой план для этого проекта
и отправьте его нам на расчет в один клик.
Каркасный дом (150 мм) 6х8 Толщина утепления 150 мм 2740800 Заказать
Каркасный дом (200 мм) 6х8 Толщина утепления 200 мм 3000800 Заказать

Воспользуйтесь нашим планировщиком для того, чтобы подстроить под свои интересы готовые проекты и получить свою уникальную планировку.

С помощью планировщика вы можете создавать подходящие схемы, планы, чертежи, эскизы дома с эркером, мансардой, с несколькими спальнями. Вы получите идеальный проект, 100% отвечающий вашим условиям.

Вы можете подобрать нужный вид крыши: двускатная, четырехскатная и вальмовая. Двухскатная считается особенно популярной в малометражных постройках.

Самые востребованные размеры коттеджей и домов на данный момент: мини - до 50м2 (в большинстве случаев, 1-этажные дома); компактные - от 70м2 до 100 квадратов (обычно двухэтажные); большие дома - от 150 кв. М и свыше.

Предлагаем дуплексы - большие надежные каркасные постройки с двумя входами, рассчитанные на проживание двух семей. Дома строятся для двух хозяев, они делятся на две половины, для каждой половины с отдельным входом.


Наши работы

Перейти в галерею


Комплектация

Площадь застройки: 83.9 м2
Длина: 6 м
Ширина: 8 м
Общая площадь: м2
Исполнение Под ключ (с отделкой)
Фундамент Свайно-винтовой или ж/б сваи (рассчитываются отдельно).
Гидроизоляция фундамента Рубероид в два слоя.
Основание (обвязка) Из обрезного бруса 150х150 мм. 150х200 мм. согласно выбранной толщине утепления. Торцевая доска строганая 45х145/45х195+/-5 мм. согласно выбранной толщине утепления. Обработка антисептиком.
Цокольное перекрытие Строганая доска камерной сушки 45х145/45х195+/-5 мм. с шагом 590 мм. Обработка антисептиком.
Пол черновой Обрезная доска камерной сушки 20х100 мм.
Влаго-ветрозащита чернового пола Мембрана Ондутис А100.
Внешние стены Стойки каркаса из строганой доски камерной сушки 45х145/45х195+/-5 мм. с шагом 590 мм. Верхняя двойная и нижняя обвязки из строганой доски камерной сушки 45х145/45х195+/-5 мм. Разгрузочный ригель из строганой доски 45х145+/-5 мм. Укосины из строганой доски 20х95 мм.
Перегородки Стойки каркаса из строганой доски камерной сушки 45х95+/-5 мм. с шагом 590 мм. Верхняя двойная и нижняя обвязки из строганой доски 45х95+/-5 мм. Разгрузочный ригель из строганой доски камерной сушки 45х145+/-5 мм. Укосины из строганой доски камерной сушки 20х95 мм.
Сборка каркаса На гвозди.
Высота от пола до потолка Дом одноэтажный: 2,5 м. Дом с мансардой: 1-ый этаж- 2,5 м.
2-ой этаж (мансарда)- 2,3 м.
Дом в полтора и два этажа:
1-ый этаж 2,5 м.
2-ой этаж 2,4 м. в полутораэтажном доме
2,5 м. в двухэтажном доме.
Внешняя отделка стен Имитация бруса камерной сушки, сорт АВ, толщиной 17 мм. Монтаж через строганый брусок камерной сушки 45х45+/-5 мм. (вентилируемый фасад). Влаго-ветрозащитная мембрана- Ондутис А100.
Внутренняя отделка стен, перегородок Евровагонка камерной сушки, сорт АВ, толщиной 12,5 мм. по строганой рейке 20х40+/-5 мм. либо ГКЛ 12,5 мм.
Отделка потолка Евровагонка камерной сушки, сорт АВ толщиной, 12,5 мм. по строганой рейке 20х40+/-5 мм. либо ГКЛ 12,5 мм.
Пол чистовой Шпунтованная доска камерной сушки толщиной 35-36 мм. сорт АВ. по строганой рейке 20х40+/-5 мм. либо шпунтованная ДСП 16 мм. по разряженной обрешётке из строганой доски камерной сушки 20х95+/-5 мм.
Утепление (пол, потолок) Минеральная вата Knauf 150/200 мм. согласно выбранной толщине утепления.
Утепление стен Плитный утеплитель Rockwool, толщиной 150/200 мм. согласно выбранной толщине утепления.
Звукоизоляция перегородок Плитный утеплитель Rockwool, толщиной 100 мм.
Пароизоляция (стены, перегородки, пол, потолок) Плёнка Ондутис R70. Дополнительная герметизация нахлёстов/примыканий пароизоляционной плёнки клейкой лентой Delta.
Окна Двухкамерные стеклопакеты ПВХ белого цвета, профиль 60 мм. В комплекте: отливы, подоконники, москитные сетки.
Двери Входная- металлическая, утеплённая (Россия). Межкомнатные- филёнчатые.
Наличники на окна и двери Наличник деревянный, строганый, камерной сушки 70-90 мм. с двух сторон.
Лестница (при наличии второго этажа) Деревянная, одно или двухмаршевая. Перила- заводские резные, балясины- заводские точеные, устанавливаются стартовые точёные столбы. Ступени 40х200 мм. Тетива лестницы- 90х140 мм.
Крыша Двускатная, ломаная или вальмовая в соответствии с проектом.
Стропильная система Выполнена из строганой доски камерной сушки 45х145/45х195+/-5 мм. Шаг установки стропил 590 мм.
Обрешётка Выполняется из строганой доски камерной сушки толщиной 20х95+/-5 мм. Шаг крепления обрешетки 350 мм. Контробрешётка выполняется из строганого бруска камерной сушки 45х45+/-5 мм. Крепится по стропилам (вентиляционный зазор).
Подкровельная мембрана Ондутис А100
Кровельное покрытие (на выбор) Металлочерепица 0,45 мм. Цвет на выбор.
Фронтоны (при наличии) Каркас из строганой доски камерной сушки 45х145/45х195+/-5 мм. Обшиваются имитацией бруса камерной сушки, сорт АВ, толщиной 17 мм. Монтаж через строганый брусок камерной сушки 45х45+/-5 мм. (вентилируемый фасад). Влаго-ветрозащитная мембрана- Ондутис А100. Монтаж вентиляционных решёток.
Свесы крыши Ширина 400 мм. Подшиваются вагонкой камерной сушки, сорт АВ.
Терраса/балкон (при наличии) Устанавливаются опорные столбы из строганного бруса камерной сушки 140х140 мм.
Отделка потолка террасы/балкона Евровагонка камерной сушки толщиной 12,5 мм. сорт АВ.
Пол террасы/балкона Шпунтованная доска камерной сушки толщиной 35-36 мм. сорт АВ.
Ограждение террасы/балкона Перила- строганая доска. Балясины- точеные, фигурные. Либо ограждение в скандинавском стиле. Устанавливаются ступени у входа.
Допуск на геометрические параметры Составляет +/- 50 мм по длине с каждой стороны.
Допускается стыковка имитации бруса, вагонки и половой доски По всему периметру стен дома (если ширина и длина дома более 6,0 метров). Вагонки и доски пола в каждой отдельной комнате.
Допуски по имитации бруса, вагонке, доске +/- 5 мм.
В стоимость включена Доставка комплекта материала в радиусе 500 км. от г. Пестова Новгородской области и сборка дома на вашем участке.
Гарантия 5 лет.
Бытовка строительная 2,0х3,0 м. каркасно-щитовая. Стоимость 23000 руб. Остаётся на участке Заказчика.
Туалет 1,0х1,0 м. каркасно-щитовой. Стоимость 12000 руб. Остаётся на участке Заказчика.
Генератор Стоимость аренды на весь срок строительства 15000 руб. ГСМ за счёт Заказчика.

Постройка каркасного дома выполняется в нескольких видах: сразу под ключ и под усадку, когда дом будет отстаиваться в течение определенного времени.

Зимой стоит строить в мороз, чтобы каркас не промок, в летнее время - не под дождем.

Оптимальными для сада или дачи стали экономные домики на винтовых сваях, на нашем сайте вы увидите одноэтажные и полуторатажные варианты.

Если дом будет строиться для постоянного проживания, готовы предложить теплые и надежные одноэтажные и двухэтажные дома на плитных и ленточных фундаментах.

Мы можем предложить два размера утепления: 200 мм и 150 мм. Каркасные дома с утеплителем двести миллиметров получаются теплее, но стоят дороже.

Дополнительные услуги


Этот уникальный и привлекательный проект 57 дома с (6х8 м.) является одним из самых востребованных зданий компании «Дача из бруса». Собранный по принципу каркасного домостроения, он полностью соответствует требованиям, предъявляемым к современным жилым сооружениям, и отличается:

Сооружение общей площадью кв.м. популярно не только среди владельцев дачных участков, но и в качестве привлекательного коттеджа на базе отдыха. Просторная светлая гостиная, уютная кухня – все помещения оборудованы двойными окнами, обеспечивающими воздухообмен и гарантирующими яркое солнечное настроение жильцам дома.

двухэтажный дом с двускатной подарит долгие вечера любителям загородного отдыха и единения с природой. Крыша из ондулина любой из трех предложенных расцветок надежно защищает дом от сюрпризов погоды, не пропуская влагу и не накапливая снег.

Дома от компании «Дача из бруса» станут надежным и комфортным жильем в Владимире.


Популярные проекты


Дома из бруса 6х6 Каркасные дома 4х10 Каркасные дома 6х5
хит продаж
Тип:
Общая площадь: 2
2772800
от 2640800
хит продаж
Тип: с балконом, с большой террасой
Общая площадь: 2
4494800
от 4280800
хит продаж
Тип: с большой террасой
Общая площадь: 2
2268800
от 2160800
Дома из бруса

Заказать или задать вопрос



Заказать или задать вопрос

Заказать звонок